Home
Profile
Experience
Team
Sustainability
News
Contact
Academic
Commercial
Government
Healthcare
Industrial
Libraries
Recreation
Religion
Residential
Retail & Hospitality
Retail & Hospitality
"
If we do not change our direction, we are likely to end up where we are headed.
"
Chinese Proverb
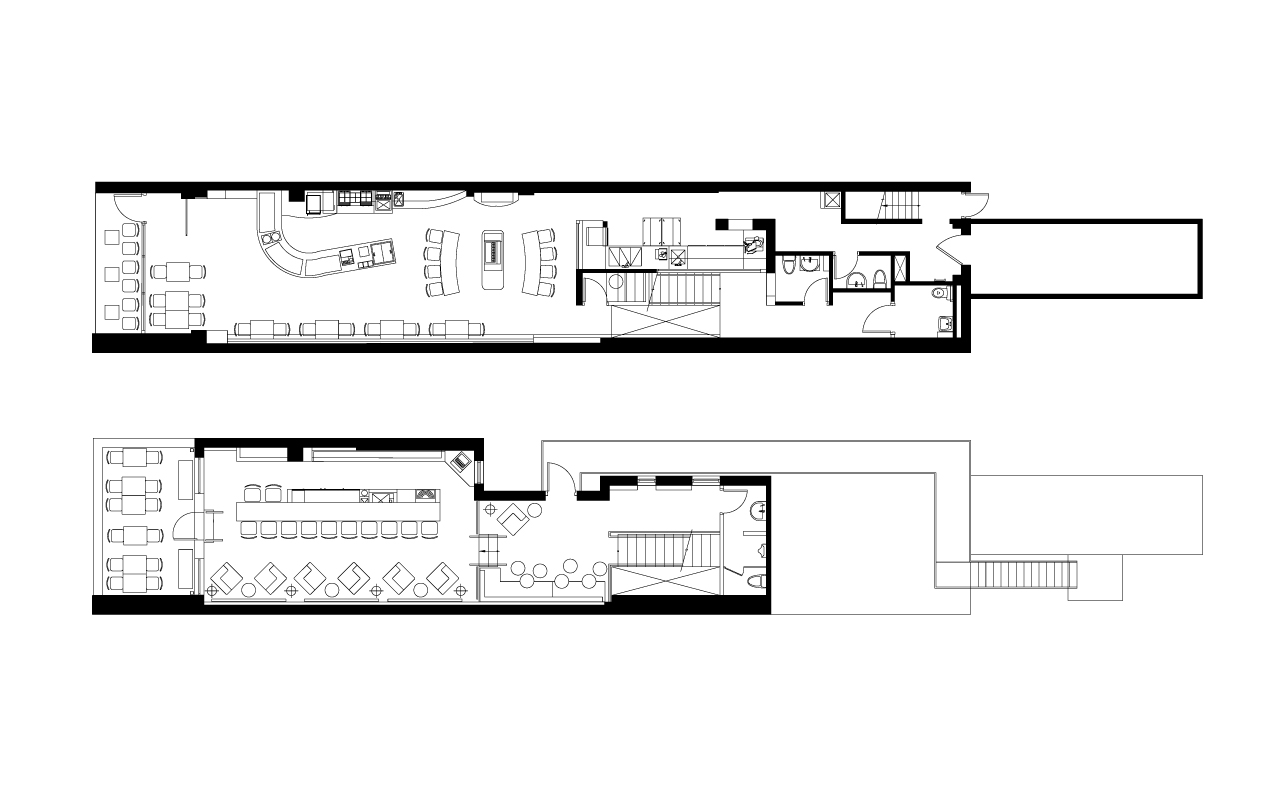
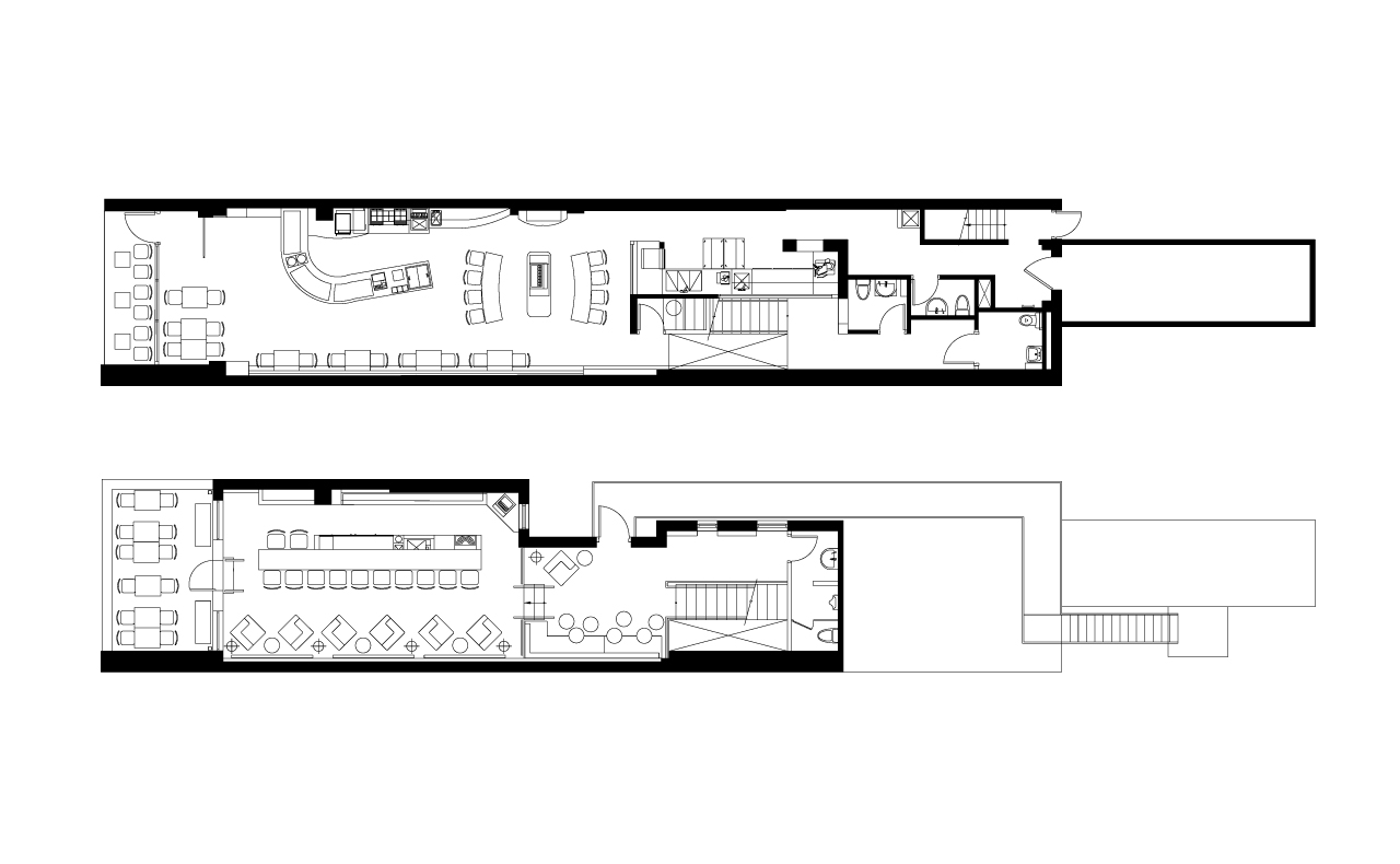
BLU Cafe
Client:
Location:
Area:
Year:
2001
Cost:
Category:
Other Projects that we've completed...
Flavor Coffee Kanata
Harvey's Restaurants
McDonald's Restaurants
Pizza Hut (Welland)
Swiss Chalet Restaurants
The Tin Mill - Uxbridge
Kingsland
Architects Inc.
|
219 Dufferin St., Suite 308b, Toronto, Ontario, M6K 3J1
|
416.203.7799