Home
Profile Experience Team Sustainability News Contact
Academic

"Architecture should speak of its time and place, but yearn for timelessness."
Frank Gehry
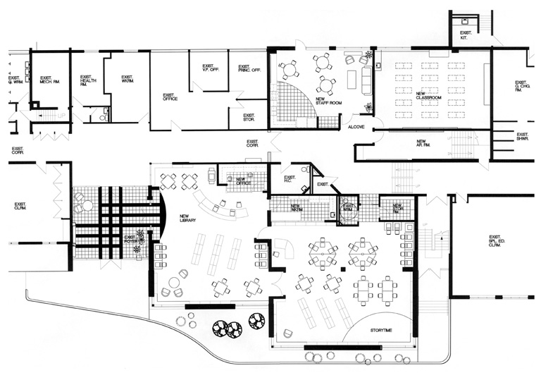
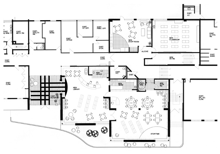
Sunderland Public School
Client:
Location:
Area:
Year: 2004
Cost:
Category:




Other Projects that we've completed...


Anderson CVI

Aurora Montessori School

Ayr Public School

Banting Memorial High School - Life Skills & Family Studies

Barrie North Collegiate Institute

Barrie North Collegiate Institute

Beaverton Public School

Brigadoon Public School – Addition & FDK Alterations - Kitchener, ON

Buttonville North Elementary School

Cameron Heights

Cawthra Park Secondary School

Cedar Creek Public School

Centennial College - Ashtonbee Campus - Exterior Cladding and Interior Finishes

Centennial College - Ashtonbee Campus - Paint and Body Shop

Centennial Public School

Donald Cousens Public School

Dr. C.F. Cannon Public School

Driftwood Park Public School

Dunbarton High School

Edna Staebler Public School - FDK Addition - Waterloo, ON

Erindale Secondary School

Erindale Secondary School

Father F.X. O'Reilly Catholic School

Floradale Public School

G.L. Roberts Collegiate

George R. Allan Public School

Glenforest

Glenforest Secondary School

Grand View Public School - Addition and Renovation
 

Grand View Public School - Replacement School

Grandview Public School Library

Henry Street High School

Highland Public School - FDK

Islamic Secondary School

Jean Vanier Secondary School

Keswick Elementary School

Langstaff Secondary School

Manchester Public School

Manchester Public School Renovation - Cambridge, ON

Marc Garneau Collegiate Institute

Middlefield Collegiate

Nottawa Public School

Oakville Christian School

Our Lady of Perpetual Help

Palmerston Public School

Parkdale Junior & Senior Public School

Pickering

Pine Grove Elementary School

Port Perry High School

Queensmount Public School

R.H. Cornish Public School

Richmond Hill Montessori School

Rockway Public School

Rogers Public School

RS McLaughlin CVI

SaTec Secondary School

SCAS Scarborough Centre for Alternative Studies

Seneca College
 

Sinclair Secondary School

Sir John A. McDonald's Collegiate Institute

St. Anselm Catholic School

St. Patrick Secondary School

St. Pius X Catholic School

St. Roch Catholic Elementary School

Stayner Public School

Stephan Leacock

Stewart Public School - FDK

Stonehaven Elementary School

Stouffville Elementary School

The Brook High School

Thornhill Secondary School

Toronto Island School

Uxbridge Secondary School

Vaughan Secondary School

W. T. Townshend Public School

W.C. Little Elementary School

Waterloo Oxford

Waterloo Oxford + Laurelwood

Waterloo–Oxford District Secondary School - New Entrance - Braden, ON

West Credit Secondary School

Westmount Public School - Portables - Kitchener, ON

Westvale Public School

Westway High School

Wilson Avenue Public School

Winston Churchill Public School

York Humber High School
 
Kingsland  Architects Inc. | 219 Dufferin St., Suite 308b, Toronto, Ontario, M6K 3J1 | 416.203.7799